Portfolio
Featured are several CAD projects I have worked on in the recent past, including architectural designs, electrical/mechanical services installations, 3D models and planning application proposals. Selecting any project will show all the associated drawings and the full project and client details. All projects have been featured with the client's permission.
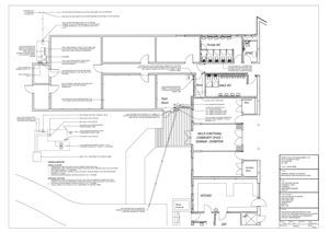
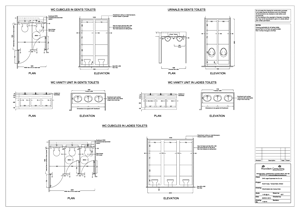
Changing Rooms Revamp
Alandem Consulting
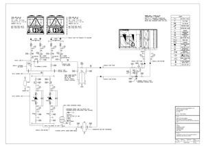
Biomass Boiler Installation
King Cathery Partnership
3D Model
Hewer Facilities Management Ltd
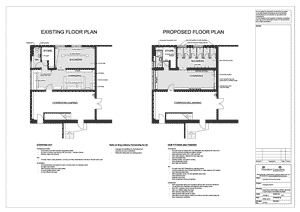
Ground Floor Refurbishment
King Cathery Partnership
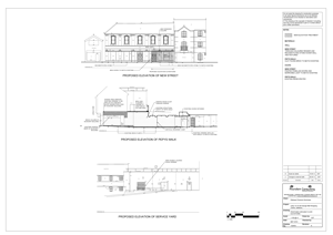
Units 14-16 Elevation Alterations
Alandem Consulting
Ground Floor Refurbishment
JRC Mechanical Services Ltd
Extension & Internal Remodelling
King Cathery Partnership
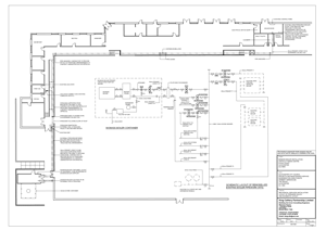
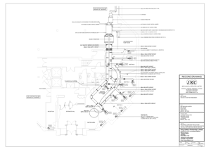
Chillers and Air Handling Installation
Hewer Facilities Management Ltd
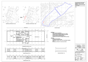
New 6th Form Building
Alandem Consulting
Remedial Works
Hewer Facilities Management Ltd
Refurbishment of Core Internal Areas
Alandem Consulting
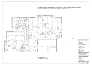
Changing Room Services
RTS Engineering Ltd