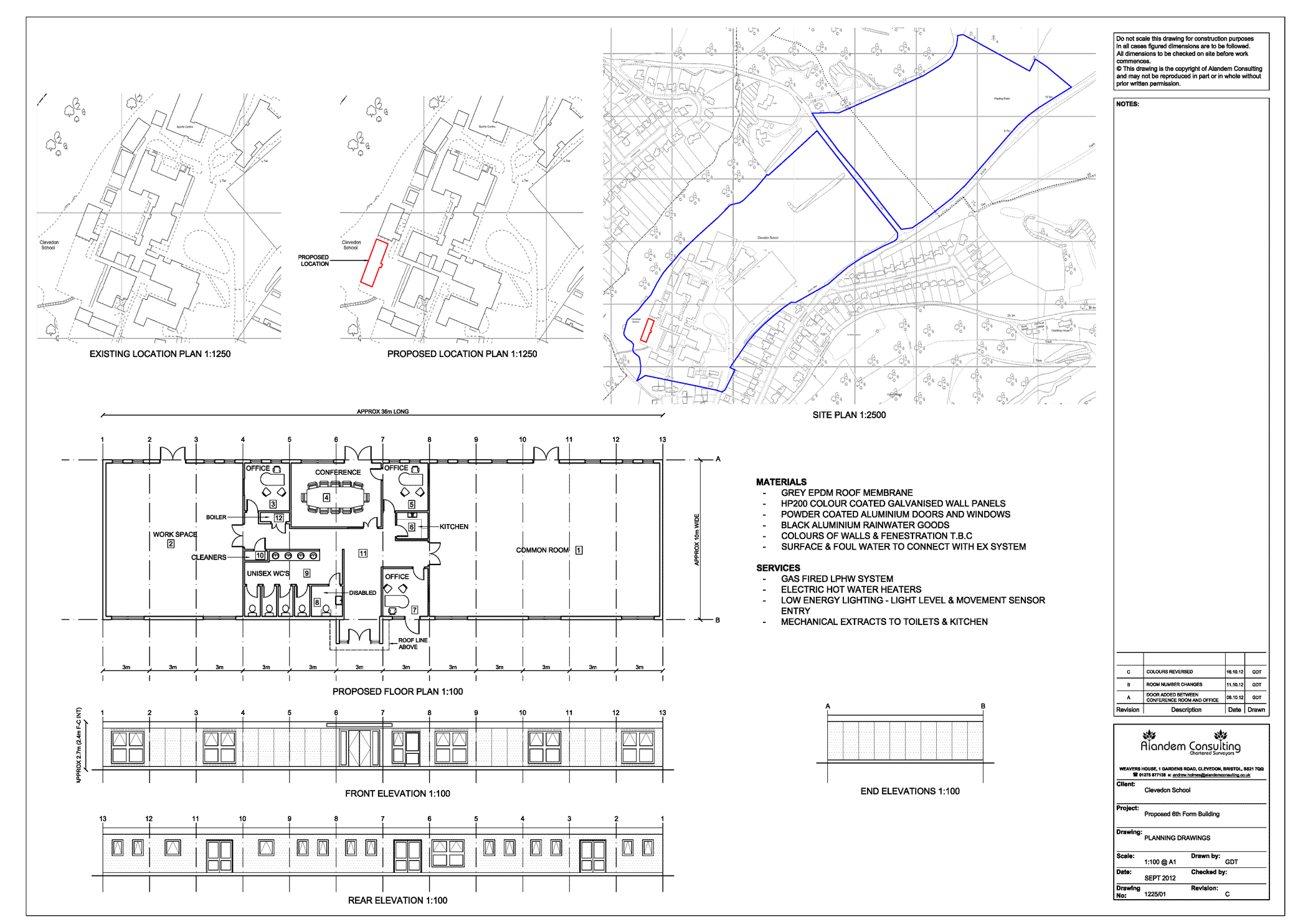
Planning application drawings for the construction of a new, single storey, prefabricated 6th form building on the existing Clevedon School site.
Click here to view planning application online