logo
  • Home
  • Portfolio
  • Contact

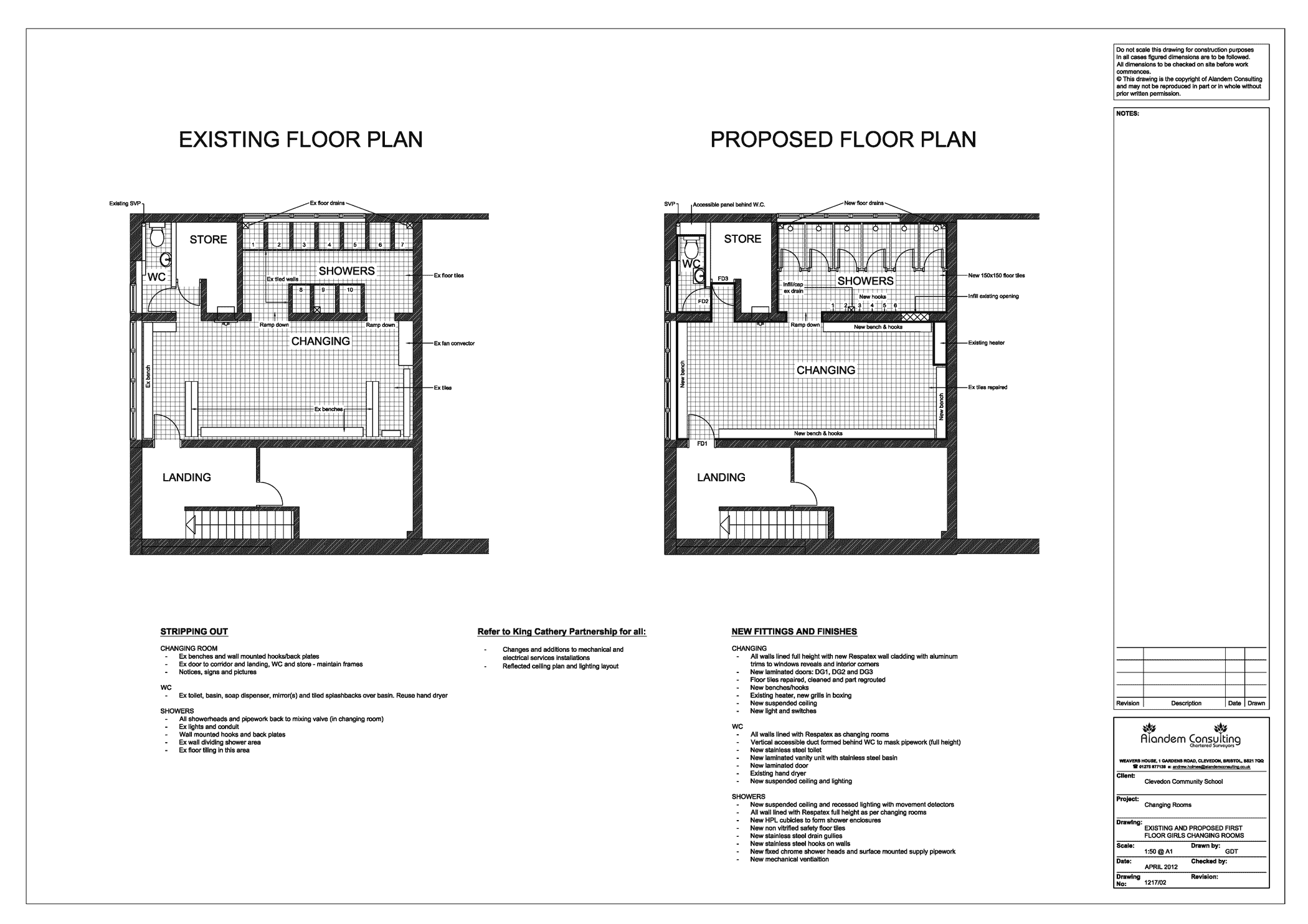
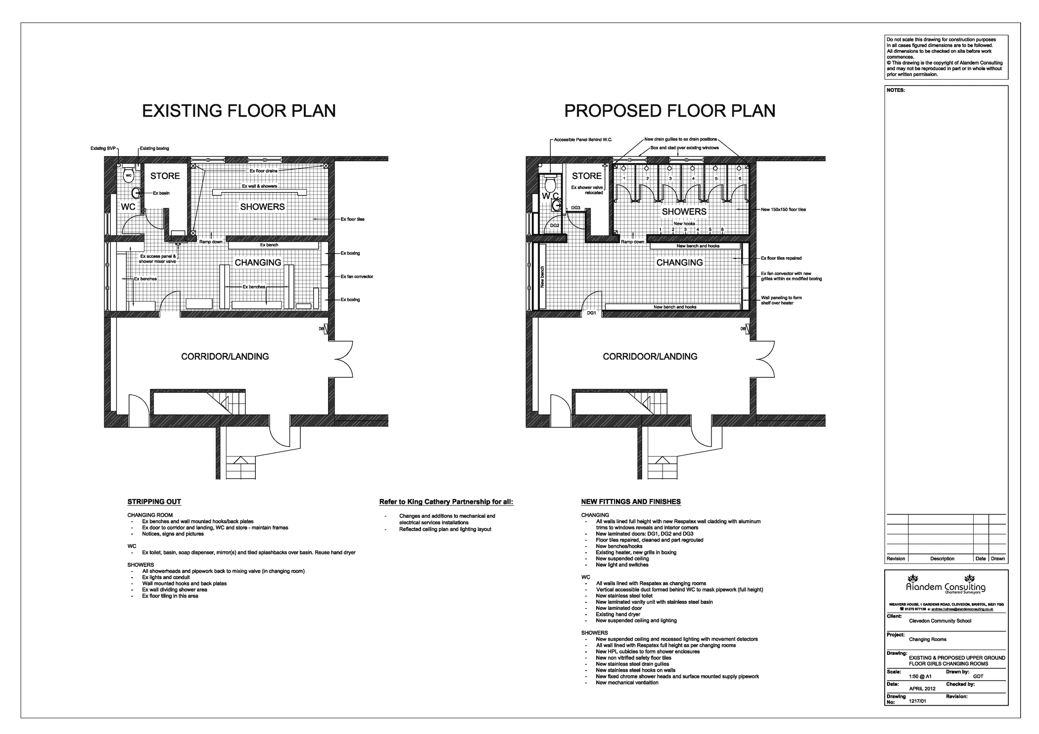
Clevedon Community School: Changing Rooms Revamp

Image 1 of 3
Back to Portfolio

Description

Revamp of existing gym changing rooms at Clevedon Community School by stripping out and replacing fixtures and fittings.

Client

Alandem Consulting

- Chartered Surveyors based in Clevedon, Bristol.
© Copyright Graham Tottle 2026. All Rights Reserved.