logo
  • Home
  • Portfolio
  • Contact

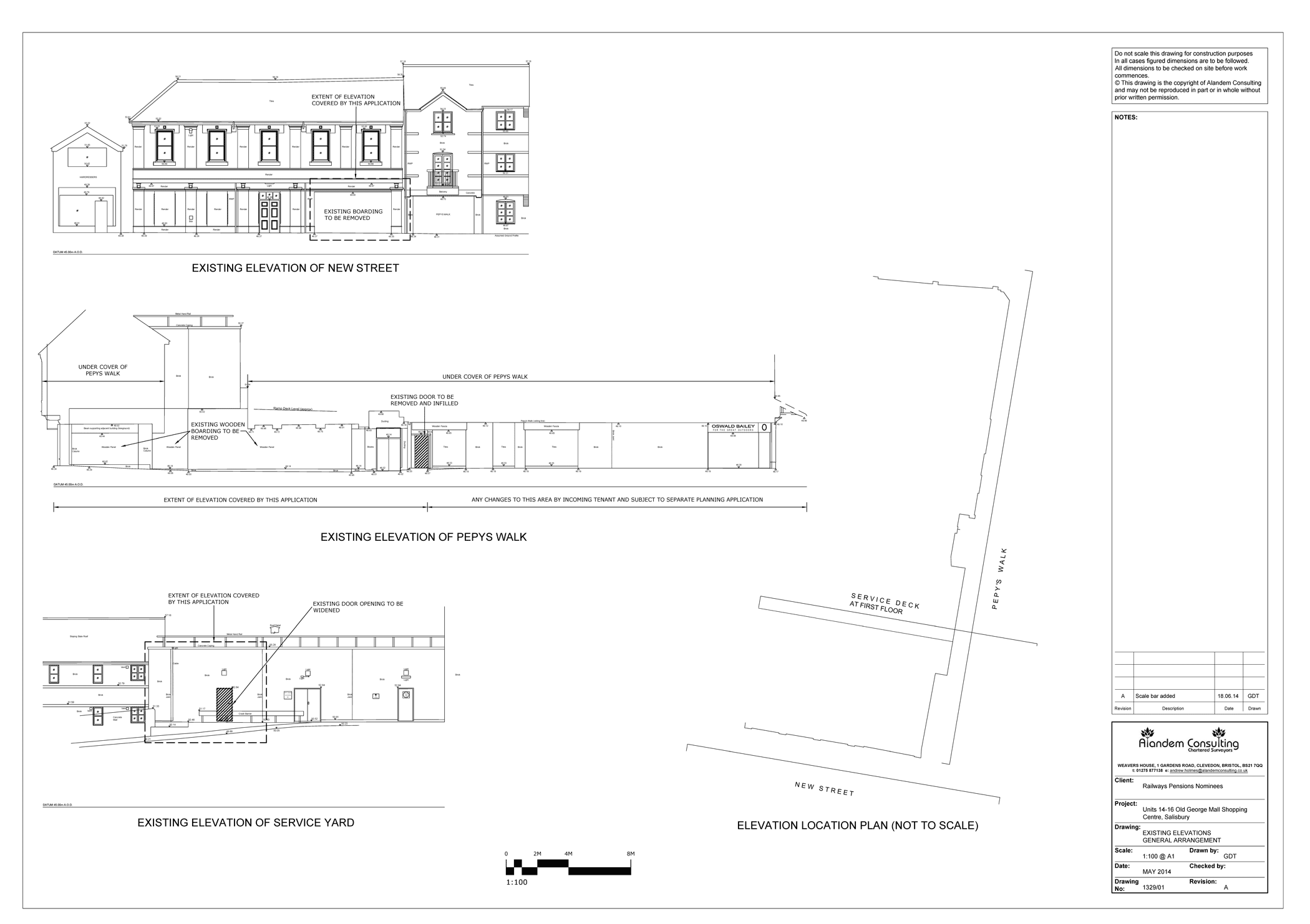
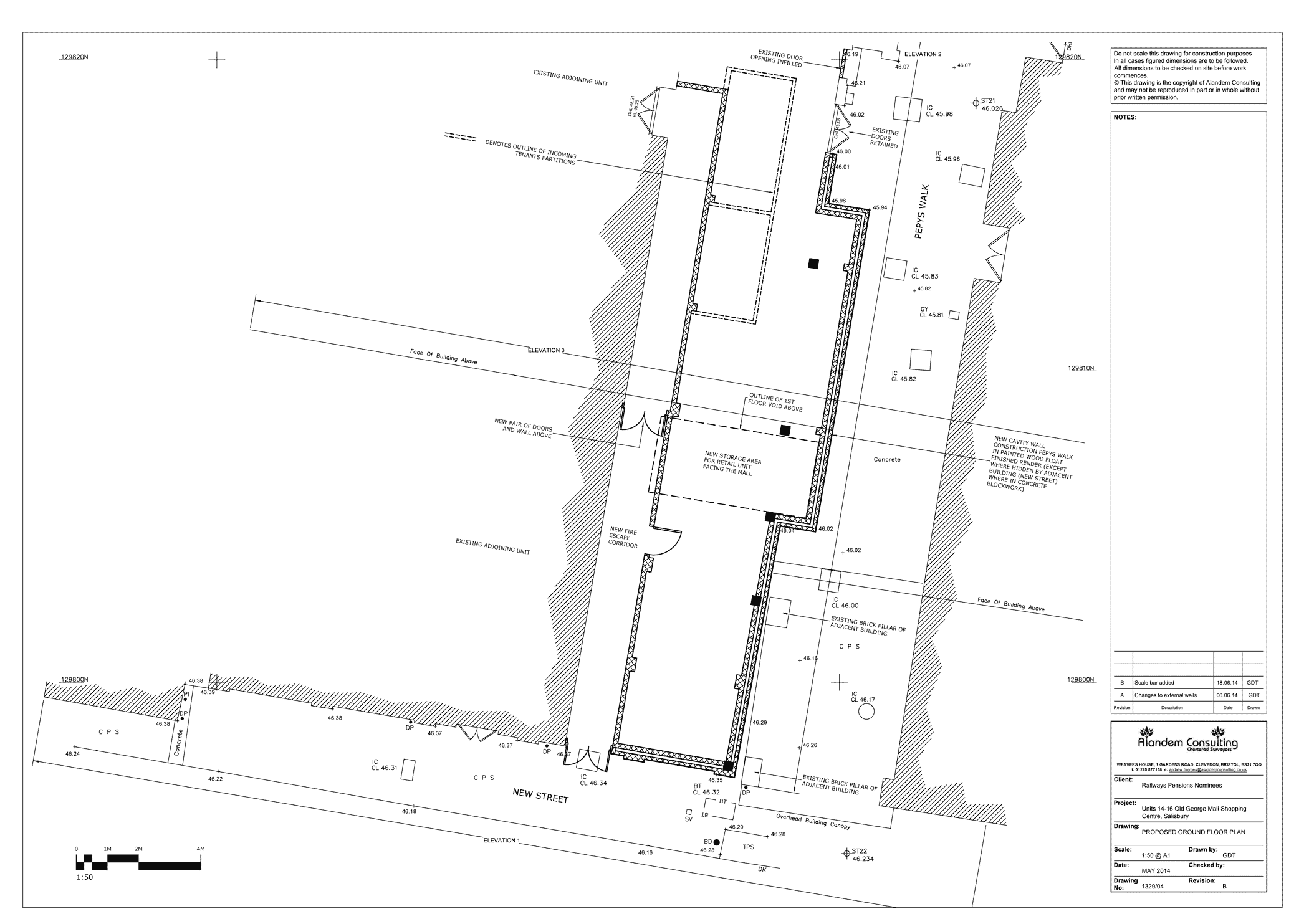
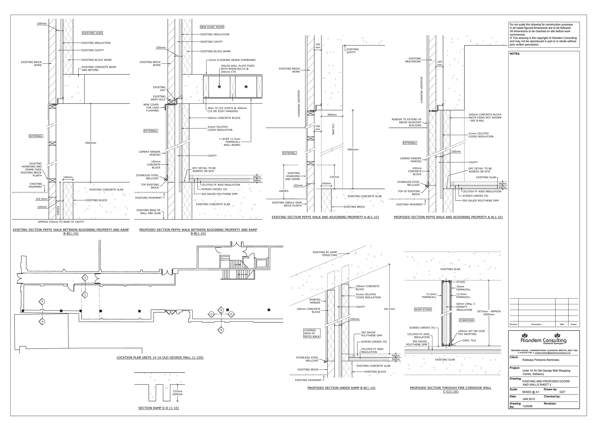
Old George Mall Shopping Centre: Units 14-16 Elevation Alterations

Image 1 of 6
Back to Portfolio

Description

Alterations to elevations of units 14-16 of the Old George Mall Shopping Centre in Salisbury. Elevation changes include switching from painted hoarding to masonry and new doors

Client

Alandem Consulting

- Chartered Surveyors based in Clevedon, Bristol.

Planning Application

Click here to view planning application online

© Copyright Graham Tottle 2025. All Rights Reserved.