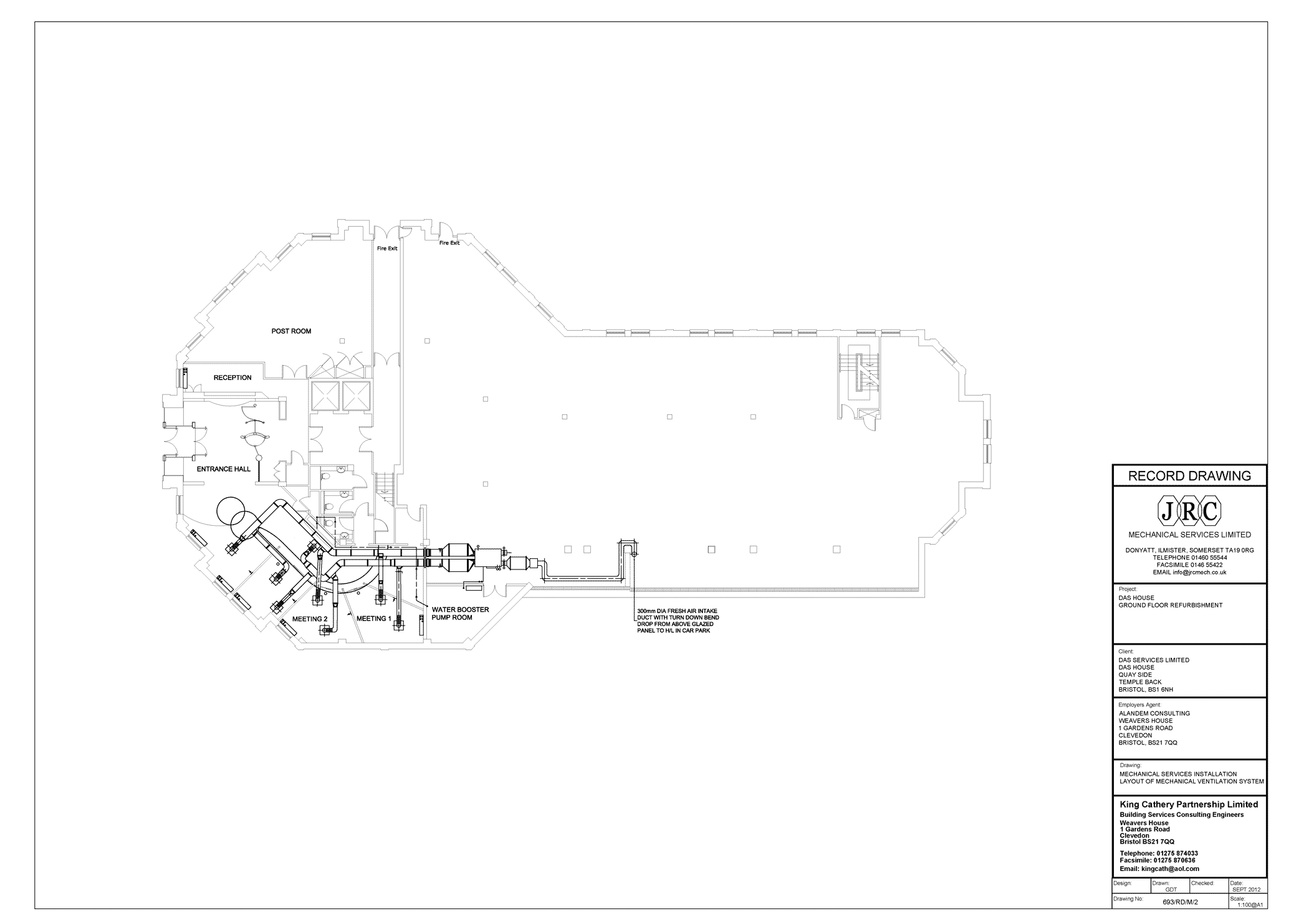
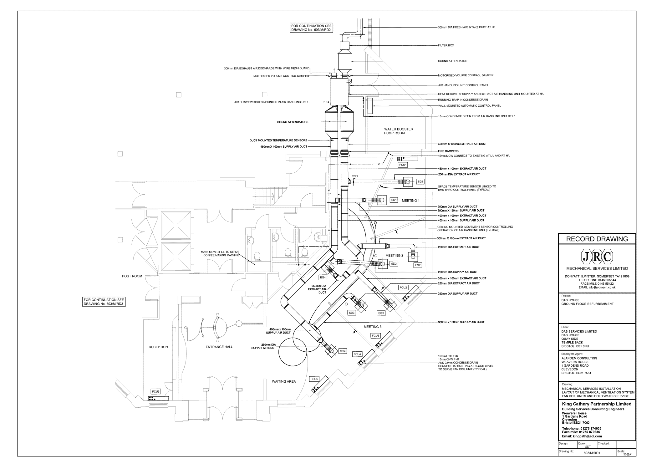
Replacement of mechanical ventilation, fan coil units and cold water services for DAS Legal Expenses in Bristol.