logo
  • Home
  • Portfolio
  • Contact

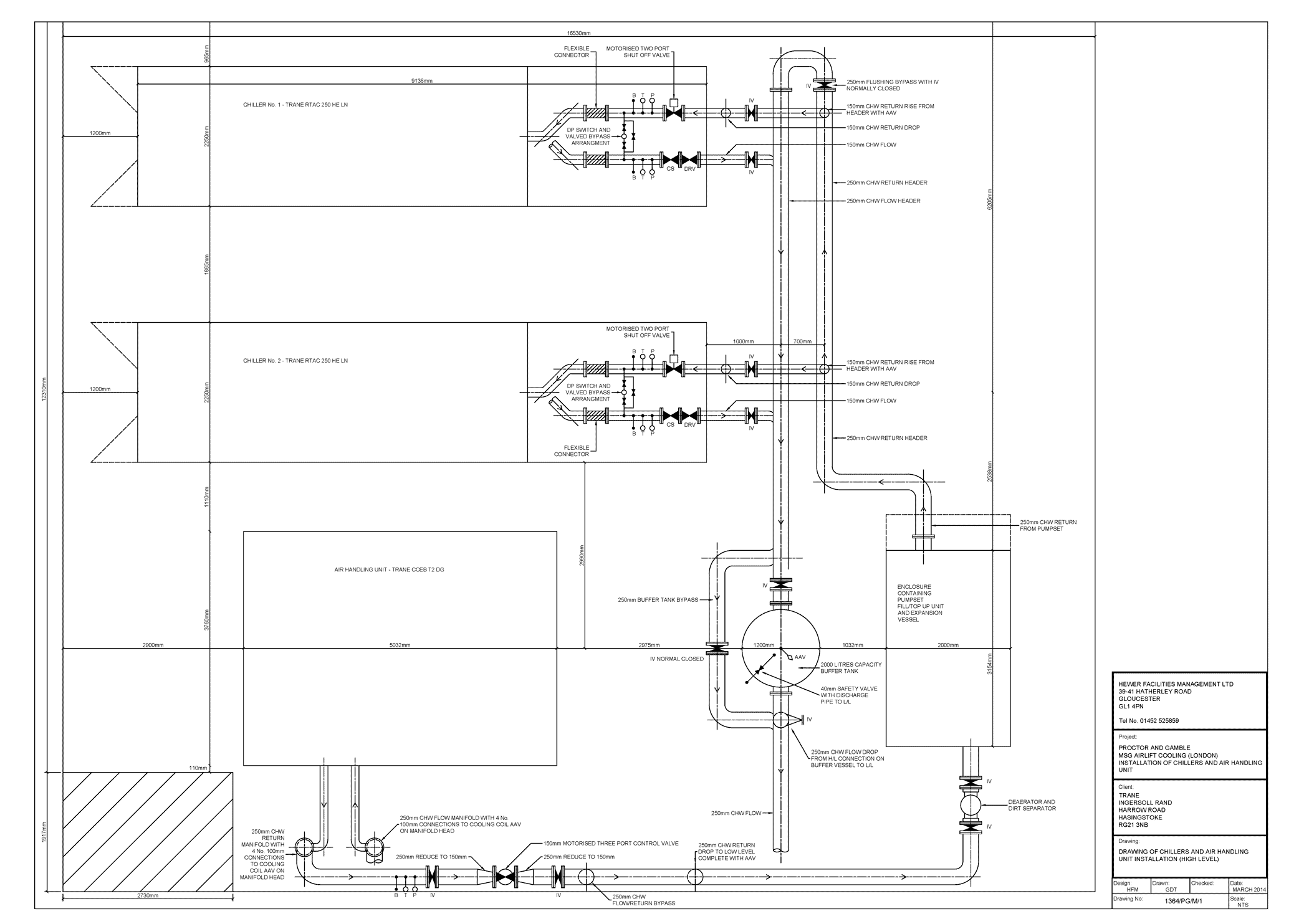
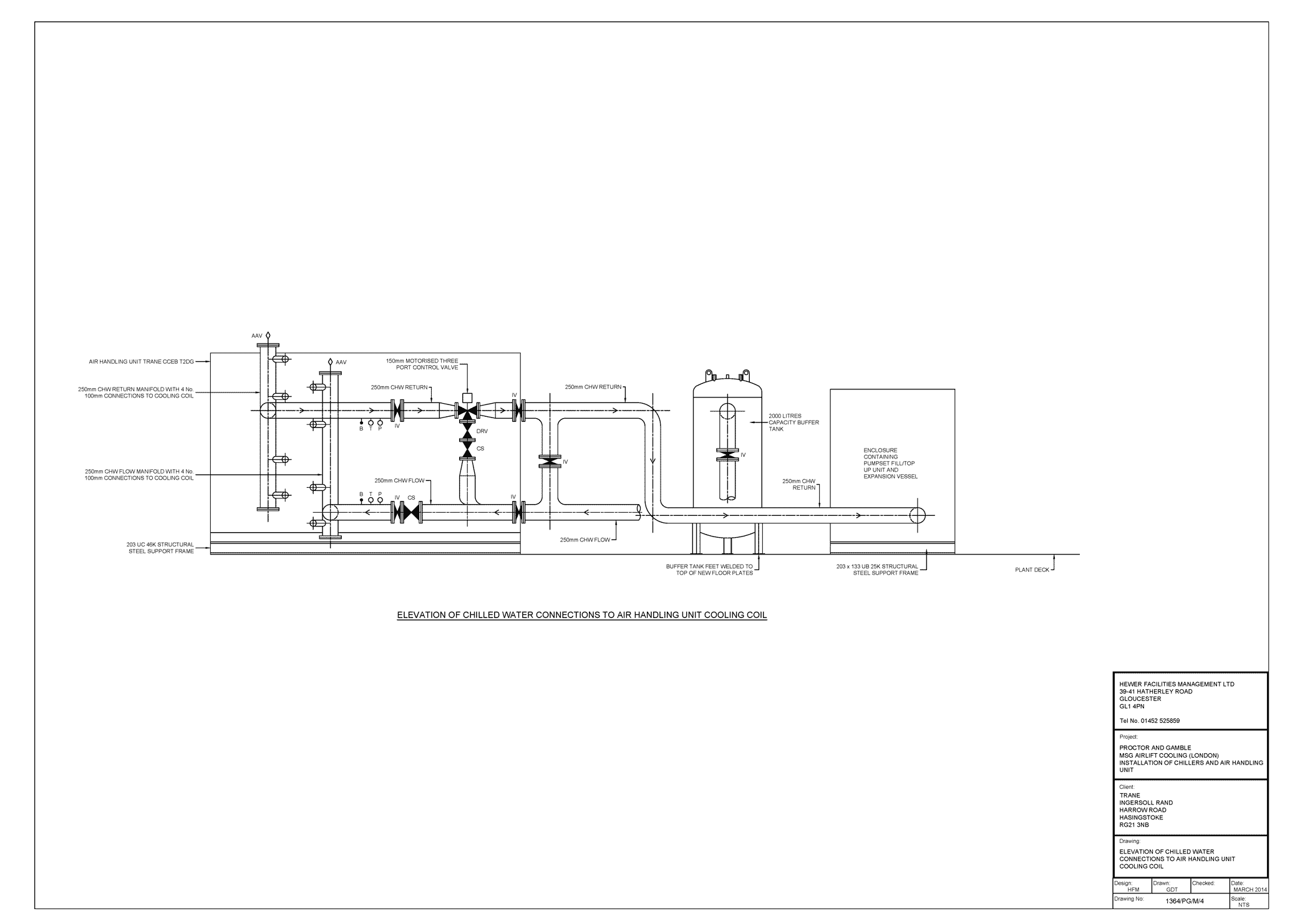
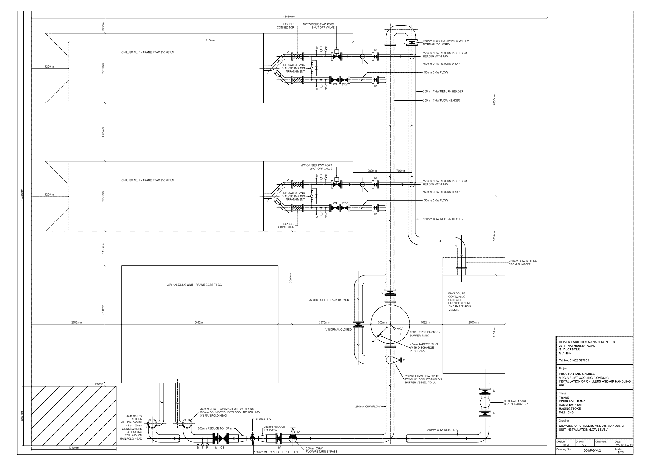
Proctor and Gamble: Chillers and Air Handling Installation

Image 1 of 4
Back to Portfolio

Description

Installation of new chillers and air handling unit for Proctor and Gamble factory in Reading.

Client

Hewer Facilities Management Ltd

- Mechanical & Electrical services installation based in Gloucester.
© Copyright Graham Tottle 2025. All Rights Reserved.